Collaboration

When the Standard Solution Doesn’t Exist

Some projects can’t be solved with standard products. They require engineering collaboration from the first sketch—working through structural loads, acoustic requirements, material transitions, and fabrication constraints before a single panel is cut.

Our colaboration process includes direct access to our engineering team and project managers.

We don’t restrict you to a catalog, we solve the problem. We offer a framework system, that is easy to customize and deliver in an elegant manner.

Special Application Examples

  • Curved Glass, Robotics Lab: Monolithic tempered curved partitions for Harvard’s robotics research space—custom radii, 37 dB STC.

  • Atrium Fall-Safety Glazing: Low-iron laminated glass in custom angle configurations, rated for fall-resistance across multi-story atriums.

  • High-Performance Acoustics: Double-glazed conference room system achieving 49 dB STC adjacent to open atrium.

Adaptable Engineering: Harvard Science & Engineering Faculty Offices

Above: Click to view full-size

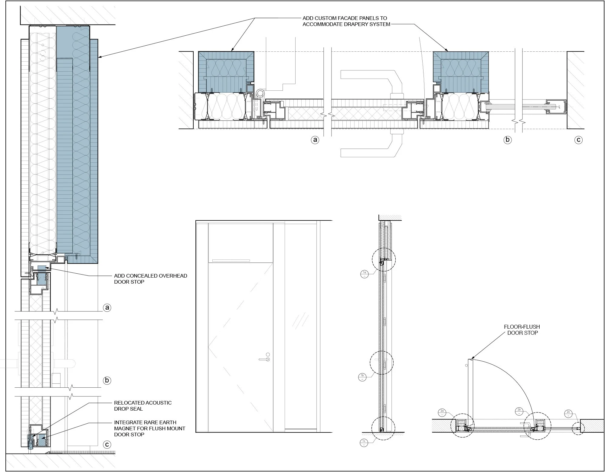
Floor-Flush Door Stop

The dividing walls were set back three to four feet from the doors, eliminating the use of traditional wall or floor stops. Any conventional stop would create a code-violating trip hazard. Our technical team sourced a floor-flush door stop that retracts and deploys when activated by a rare-earth magnet integrated into the door leaf—creating a solid stopping point while maintaining a seamless, code-compliant floor surface

Extended Wall Frame for Drapery

The privacy drapery system could not mount to our standard four-inch solid wall with center glazing. We extended the door frame depth to seven inches by fabricating three-inch matching wood panels that attach to the standard walls—creating proper mounting surfaces while preserving visual continuity.

These solutions demonstrate the engineering capability that sets our systems apart: when architectural vision meets practical constraints, we bridge the gap.

Robotics Lab: Harvard Science & Engineering Complex

Very few partition companies welcome a design featuring 10-foot-high soffits with 23 radii of curved glass. We did.

Procuring materials required 230 precise calculations—profiles, glass, and arc lengths measured to the millimeter. At the General Contractor's request, Pannello also verified all gypsum drywall as-built conditions, including the accuracy of each soffit radius, before fabrication began.

At project kickoff, we heard the familiar warning: "All curved glass wall projects are a nightmare." Not this one. The Robotics Lab was delivered with no punch list.

Discuss Your Project